Наші Проекти
Кожен проект — це конкретна допомога конкретним людям. Ми працюємо прозоро та ефективно, щоб ваші внески приносили максимальну користь.
Центр відновлення
АКТИВНИЙ ПРОЄКТ: БУДІВНИЦТВО ЦЕНТРУ ВІДНОВЛЕННЯ «ШЛЯХ ПЕРЕМОЖЦЯ» (Миколаївська область)

Проєкт будівництва Центру Відновлення Сучасний одноповерховий реабілітаційний центр закритого типу, створений спеціально для комплексного відновлення військовослужбовців. Мета центру — забезпечити безпечний, спокійний та гідний простір, де поєднуються фізична реабілітація, психологічна підтримка, духовне відновлення та соціальна адаптація.
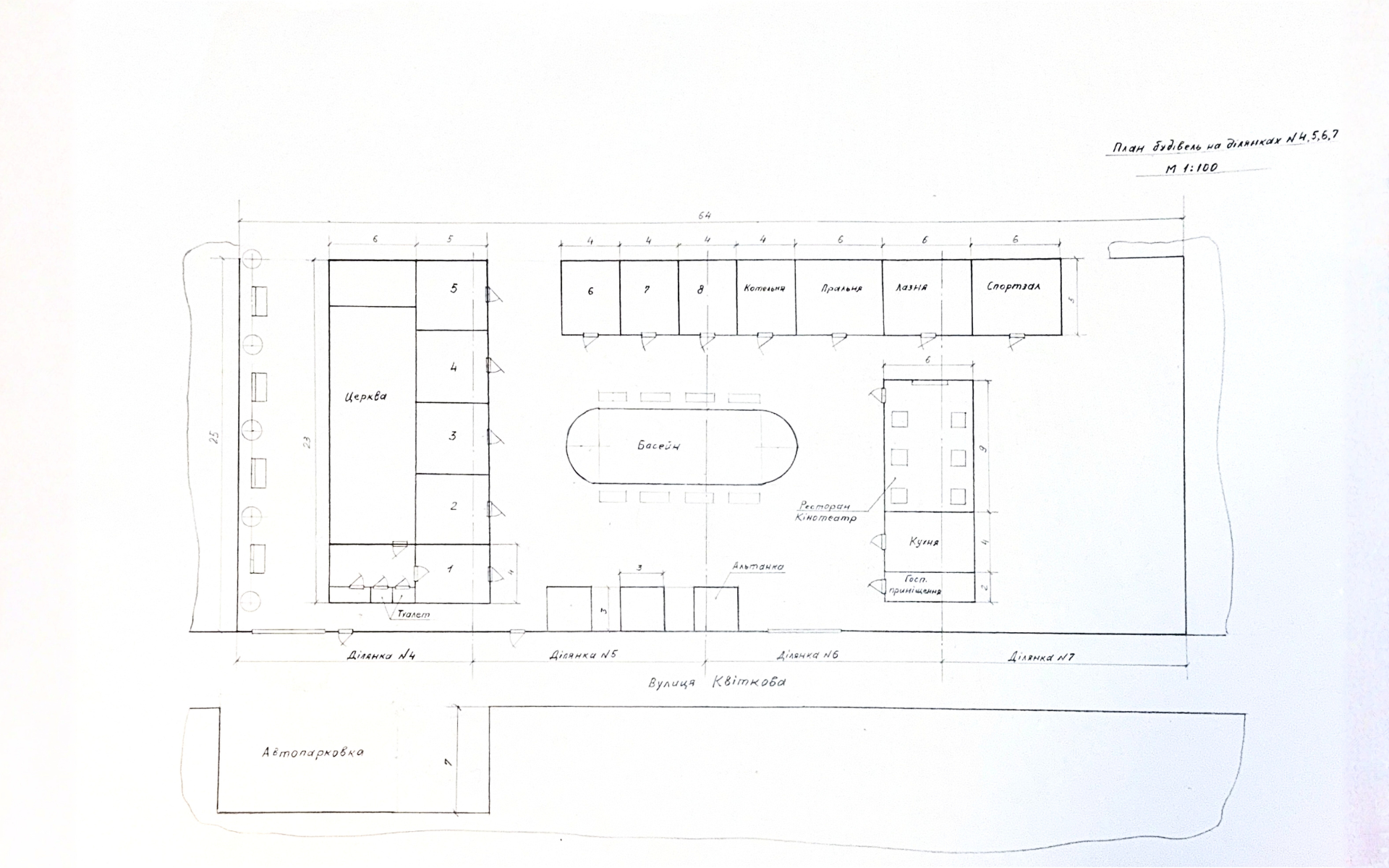
Архітектурна концепція
Комплекс спроєктований у форматі замкненого внутрішнього простору, що формує відчуття захищеності та приватності. Будівлі розташовані П-подібно навколо центрального внутрішнього двору. У центрі двору передбачено: • відкритий басейн • лундж-зону відпочинку з лежаками • озеленений простір для релаксації та спілкування Такий формат архітектури довів свою ефективність у реабілітаційних центрах у світі, оскільки мінімізує зовнішні стресові фактори.

Фото будівництва

Функціональне наповнення комплексу
- Житловий блок: окремі житлові номери для учасників програми з природним освітленням та великими вікнами. Ж. блок розрахований на 16 осіб (8-м пар)
- Психологічна та медична реабілітація: кабінети для індивідуальної роботи з психологами, масажний кабінет, сауна, спортивний зал
- Адміністративна зона: ресепшн, адміністративні приміщення, зручна логістика між усіма блоками
- Харчування та побут: повноцінна кухня, їдальня з виходом у внутрішній двір, технічні приміщення
- Простір тиші та духовного відновлення: окреме приміщення для усамітнення, роздумів та духовної підтримки
- Територія та інфраструктура: внутрішній двір повністю пішохідний, автостоянка винесена за межі житлової зони, територія огороджена
Цей центр — не просто будівля. Це інвестиція в людське життя, у відновлення тих, хто захищає країну.
Значення проєкту
- реальний, вимірюваний соціальний вплив
- довготривалий гуманітарний ефект
- прозоре використання ресурсів
- можливість створити модель, яку можна масштабувати в інших регіонах
- безпечний, спокійний та гідний простір для відновлення
- поєднання фізичної реабілітації, психологічної підтримки та духовного відновлення
Це інвестиція не в бетон і дерево — це інвестиція в людей, які заплатили найвищу ціну за нашу свободу.
Стан реалізації
Закладено бетонний фундамент, піднята коробка будівлі на 50%. На сьогодні проведено: • аналіз ділянки • архітектурні ескізи та концепція будівлі • 3D-візуалізації майбутнього центру • розробка програм реабілітації • формування команди спеціалістів, психологів і капеланів • підготовка до початку будівельних робіт Наступний етап — залучення партнерів та інвесторів для будівництва.
Ми відкриті до співпраці
Фонд «Шлях Переможця» запрошує: • благодійні організації • бізнес-партнерів • міжнародні фонди • приватних донорів долучитися до створення місця, яке врятує не одне життя і не одну сім'ю.
Кожен внесок — це цеглина у фундамент майбутнього. Кожен партнер — це людина, яка допомагає воїнові знайти шлях до світла. Разом ми будуємо шлях до відновлення. Разом ми будуємо шлях Переможця.
Вказуйте в призначенні платежу
Активні Проекти

Реабілітаційний Центр
Будівництво Центру відновлення та реабілітації для військових та їхніх родин у Миколаївській області. Це місце, де душевні рани перетворюються на нову силу.
Вказуйте в призначенні платежу

Психологічна підтримка
Комплексна програма психологічної реабілітації та підтримки для військових, ветеранів та їхніх родин.
Вказуйте в призначенні платежу

Навчання спеціалістів з роботи з ПТСР у військових
Цей проєкт створений для підготовки нових фахівців, які працюватимуть із військовими, ветеранами та їхніми родинами. Програма включає навчання сучасним методам психологічної підтримки, роботі з ПТСР, травматерапії, стабілізаційним технікам та кризовому консультуванню. Мета — сформувати професійну команду, здатну надавати якісну допомогу тим, хто пережив травму війни.
Вказуйте в призначенні платежу
Завершені Проекти

Зимова допомога 2023
Забезпечено теплим одягом та обігрівачами 500 родин.

Медичне обладнання
Передано 15 одиниць медичного обладнання у лікарні.

Освітня програма
Організовано навчання для 200 дітей у безпечних умовах.